Custom Lindal, designed by Atlantic Custom Homes
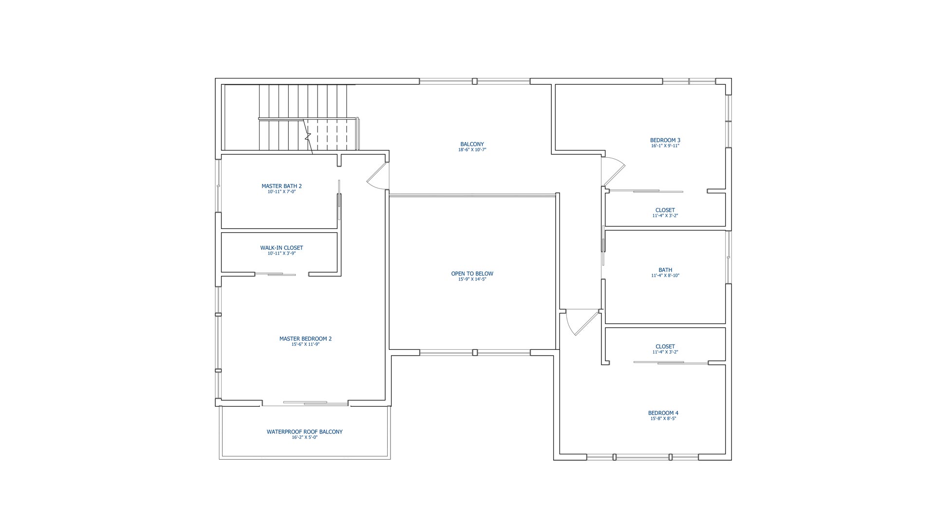
2,740 square-foot 2 story home with upper and lower master suites and an optional 500 square-foot basement level media room
4 bedroom, 3.5 bath
This 2-story home has a lot to offer within its walls. The main level has an open kitchen and living room, large enough to host guests for dinner inside or by accessing a deck right outside. The upper level with 3 bedrooms has an open view of the living room below. The 2 master suites – one on the main level and one on the upper level – are perfect for multi-family living or for the couple that wants to “age in place”. An optional basement level media room can be used for movie night or as an extra play space for the kids
